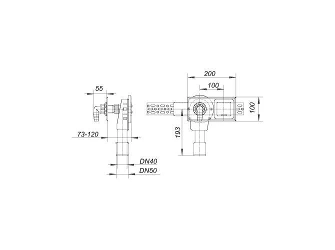
HL
400 E
mit kleinem strömungsgünstigen Gehäuse,
schalldämmende Montageplatte,
Reinigungsverschluss, langem
absägbaren Schraubstutzen, Winkel-
schlauchtülle verchromt, Leifeld-
Montageschiene, Elektroanschluss mit
Abdeckklappe, Abdeckplatte aus
Edelstahl
100 x 200 mm, Einbautiefe 60 -110 mm
Prüfzeichen VDE (Elektroanschluss).
Siphongehäuse aus Polyethylen,
schweißbar














Rezensionen
Es gibt noch keine Rezensionen.